SW Portland Home Addition
This SW Portland home addition expanded the home to include a new bedroom and bathroom, creating a comfortable and functional extension that blends seamlessly with the existing space.


Designed for Everyday Living
The new addition was designed to provide a private, livable space that connects naturally to the rest of the home, including direct access from the bedroom to the outdoor deck.
Designed for Everyday Living
The new addition was designed to provide a private, livable space that connects naturally to the rest of the home, including direct access from the bedroom to the outdoor deck.

Before construction began, the home lacked the additional space needed to support the homeowner’s lifestyle. By planning a thoughtful addition, the goal was to expand the home in a way that felt cohesive, functional, and consistent with the existing structure.
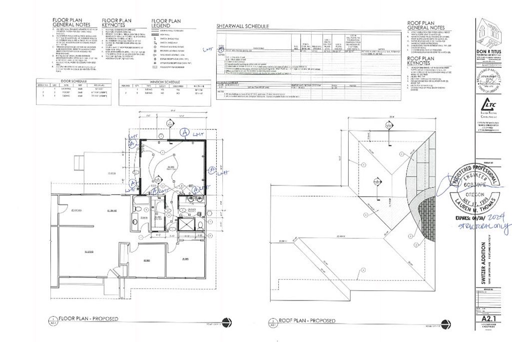
Careful planning played a key role in this project, from layout and design to permitting and execution. Each step was mapped out to ensure the new addition would integrate seamlessly with the home.
Before construction began, the home lacked the additional space needed to support the homeowner’s lifestyle. By planning a thoughtful addition, the goal was to expand the home in a way that felt cohesive, functional, and consistent with the existing structure. Careful planning played a key role in this project, from layout and design to permitting and execution. Each step was mapped out to ensure the new addition would integrate seamlessly with the home.
From Groundwork to Framing
Construction began with excavation and concrete forms outlining the new master suite. Once framing was completed, we installed windows, doors, roofing, and house wrap to make the structure weather-tight.


The Vision Takes Shape
As the project progressed, the addition began to take shape. With drywall installed and interior work underway, the vision for the new bedroom and bathroom became fully realized, transitioning the project from structure to livable space.
The Vision Takes Shape
As the project progressed, the addition began to take shape. With drywall installed and interior work underway, the vision for the new bedroom and bathroom became fully realized, transitioning the project from structure to livable space.

The finished kitchen reflects a balance between transformation and preservation. By combining painted cabinetry, new countertops, and updated fixtures, the space feels modern and refreshed without losing its original character. Final details, like the island pendant lighting, bring warmth and focus to the heart of the home.
Walk-In Shower Design
The new bathroom features a spacious walk-in shower designed with clean lines and durable materials. The tilework and modern fixtures create a calm, functional space that complements the overall design of the new addition.


Vanity and Storage
The vanity area provides both style and practicality, with modern finishes and thoughtful storage to support everyday routines. Clean surfaces and simple lines keep the space feeling bright and uncluttered.
Vanity and Storage
The vanity area provides both style and practicality, with modern finishes and thoughtful storage to support everyday routines. Clean surfaces and simple lines keep the space feeling bright and uncluttered.

At NW Residential, we believe every home addition should balance beauty and functionality. By working closely with our clients, we help design and build spaces that feel natural, cohesive, and tailored to how they live.



